解决方案
针对行业应用,提供一站式解决方案
查看详情
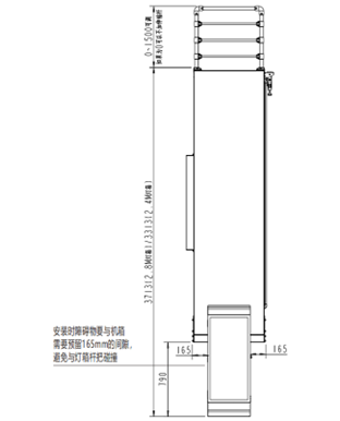
PKG6401-ZD@R-KB-28-C
广告道闸C款(右向,2.8米卡布,含雷达孔)
采用直流无刷电机,3-6s速度可调,控制精准
自带防砸雷达、可视防砸雷达孔位,可按需搭配,避免砸人/车
支持卡布、箱体灯箱广告投放
支持断电手动抬杆开闸
支持双闸对开,开关闸时间准确同步
四段数码管显示,便于调试及维护
支持连续过车时闸杆常开功能
支持无线遥控、台控、手动、开关量、RS485信号控制等开闸方式
采用无限位开关设计
提供学习型遥控器,可现场配对
箱体表面静电喷涂工艺,防水、防锈、不褪色
闸杆配有橡胶胶条,可起到缓冲保护作用

